
于城镇村庄建设规划方案设计由嘉兴市国土空间规划研究院有限公司负责设计。
现按规定程序将此规划设计方案在海盐县门户网站、于城镇政府公示栏予以公示,征求广大群众的意见。
如对本规划设计方案有意见或建议的,请在公示期内以书面形式向于城镇人民政府或所在行政村反馈。
公示时间:2021年10月14日—2021年11月13日
联系地址:海盐县于城镇海王公路海盐段4188号
联系电话:0573-86576036
于城镇人民政府
2021年10月13日
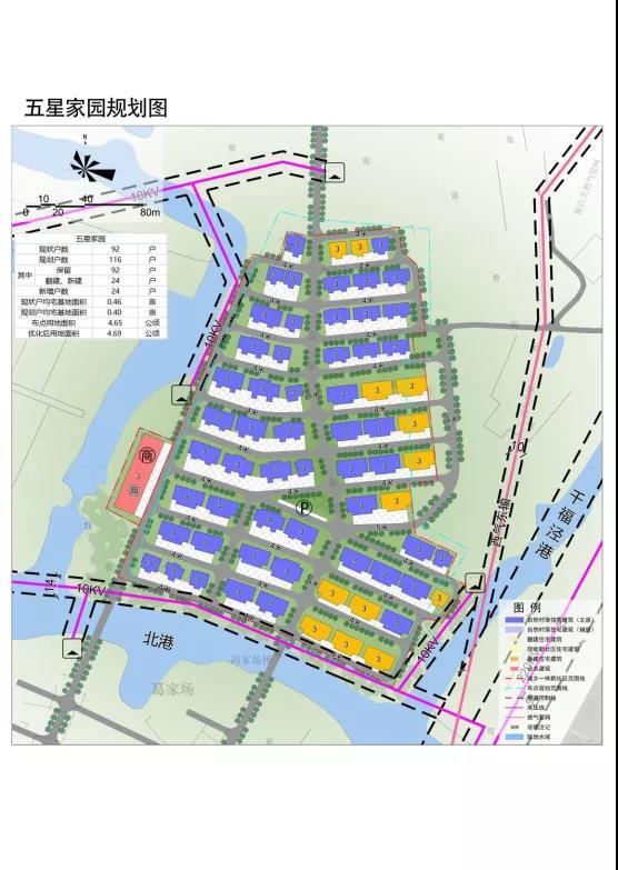
八字村
























![]()
来源 :海盐网
版权说明:平台所转载文章,均会注明作者及来源。部分文章发布时未能及时与原作者取得联系。若涉及版权问题,请联系本平台0573-82799370。
